ようこそ様
pt
Language
日本語
English
한국어
中文(简体)
中文(繁体)
アクセス
よくあるご質問
お問い合わせ
052-251-2411
宴会・会議
一覧へ戻る
ようこそ、様
会員
0pt
ログイン時にエラーが発生いたしました
ご利用のアカウントはロックされています。 こちらから再度パスワードを設定してください。
コンフォートメンバーズの方
パスワードについて(ロックがかかってしまった場合)
パスワードをお忘れの方は、こちら
パスワード設定がお済でないお客様はこちら
宿泊のご優待やポイントもたまる!便利な会員サービス
ログアウト
現在のステータス:
利用可能ポイント
0p
うち1000pは有効期限年12月31日まで
詳細を見る
年4月~年3月
年間ポイント:0p
年間ポイント:CLEAR!
累計ポイント:0p
累計ポイント:CLEAR!
会員ステータスはこちら
ポイント
お客さま情報
会員証
様
0
予約 閉じる
ログイン
会員番号またはメールアドレス
パスワード
パスワードをお忘れの方は、こちらからご確認ください
パスワード設定がお済みでないお客様はこちら
法人サイトはこちら
ご宿泊、レストランでのご優待をはじめ多彩な特典をご用意しております。
トップ
宿泊プラン
おすすめ
特選
長期滞在
グループ&ファミリー
チケット付き
会員限定
マイル積算
レディース
ショートステイ
客室
宿泊のご案内・各種サービス
ルームサービス
ロイヤルスイート メゾネット
エグゼクティブフロア
東急ホテルズの環境活動
笑顔になる朝食
レストラン&バー
レストランプラン一覧
テイクアウトメニューのご案内
レストラン「ロワール」 フレンチ
レストラン「ロワール」 鉄板焼
中国料理「南国酒家」
日本料理「なだ万」
オールデイダイニング「モンマルトル」
アトリウムラウンジ 「グリンデルワルド」
メインバー「フォンタナ ディ トレビ」
ベーカリーショップ
MICE
High-Speed Internet Service
宴会場料金一覧
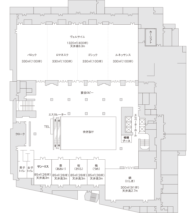
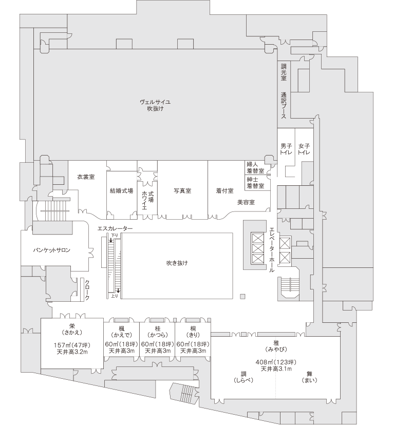
フロアマップ
宴会プラン
ウエディング
施設案内
観光情報
総合案内
コンフォートメンバーズのご案内
名古屋東急ホテルオリジナル コンフォートメンバーズ特典
Webチェックインシステムのご案内
デリスメンバーズカードのご案内
法人契約サービスについて
ニュースリリース
一般事業主行動計画策定について
無線LAN(Wi-Fi)サービスのご案内
採用情報
名古屋東急ホテルのSDGs活動
拡大する
宿泊のご優待やポイントもたまる!便利な会員サービス