ようこそ

pt

コンフォートメンバーズ

Language

  • 日本語

  • English

  • 한국어

  • 中文(简体)

  • 中文(繁体)

  •  
  •  
  •  

アクセシブルツイン

ログイン時にエラーが発生いたしました

ご利用のアカウントはロックされています。

コンフォートメンバーズの方

宿泊のご優待やポイントもたまる!便利な会員サービス

ようこそ

現在のステータス:

利用可能ポイント

0p

うち1000pは
有効期限年12月31日まで

詳細を見る

フロア

5

ベッド

2台 ( 111 × 205 )

利用人数

1 ~ 2 人

面積

33.9 ㎡

バスルーム

セパレート

禁煙ルーム

全室禁煙


お部屋の間取りはあくまで一例です。面積や家具の配置、備品などはお部屋により異なりますので、あらかじめご了承ください。


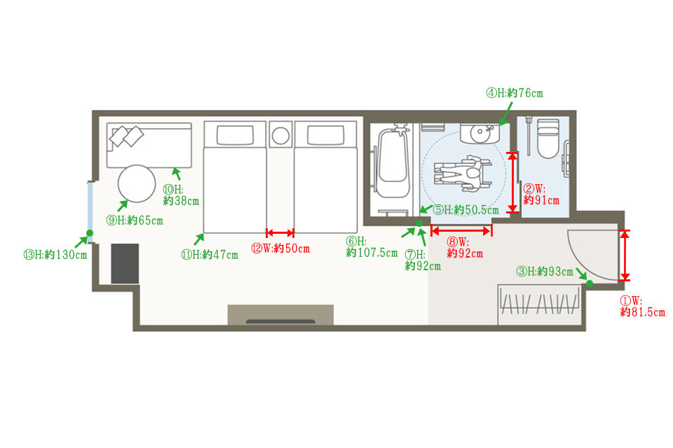
室内サイズ一覧

①ドア/横幅 約81.5㎝
②トイレ扉/横幅 約91㎝
③客室内電気スイッチ/高さ 約93㎝
④洗面台/高さ 約76㎝
⑤バスタブ/高さ 約50.5㎝
⑥エアコン操作盤/高さ 約107.5㎝
⑦バスルーム電気スイッチ/高さ 約92㎝
⑧バスルーム扉/横幅 約92㎝
⑨テーブル/高さ 約65㎝
⑩椅子(ソファ)/高さ 約38㎝
⑪ベッド/高さ 約47㎝
⑫ベッドとベッドの間/横幅 約50㎝
⑬窓ハンドル/高さ 約130㎝


アメニティ

  • お茶セット

  • スリッパ

  • バスタオル

  • フェイスタオル

  • ボディソープ

  • フェイシャル&ハンドソープ

  • シャンプー

  • コンディショナー

  • 歯磨きセット

  • カミソリ

  • ヘアブラシ

  • ボディタオル

  • 綿棒

  • ナイトウェア

  • 消臭スプレー

  • コットン

  • スキンケアセット(クレンジング・洗顔料・化粧水・乳液)

客室備品

  • テレビ(スマートTV)

  • 電話

  • 湯沸しポット

  • 冷蔵庫

  • ドライヤー

  • 温水洗浄便座設備

  • 加湿機能付空気清浄機

  • 折りたたみ鏡

  • アイスペール

 
スマートTV

43インチ・4Kチューナー内蔵TV(ミラーリング機能付き・Android対応)。
NETFLIX/prime video/hulu/YouTube等の動画がご利用頂けます。
※有料アプリは、利用者ご本人のログインが必要となります。

※メンテナンス中(12:00~13:00)は、ホテルインフォメーションおよび有料チャンネル、アプリはご使用いただけません。ご了承ください。

貸出用備品

下記の備品をフロントにてお貸出ししております。

レンタル品は数に限りがございます。ご了承ください。

  • アイロン&アイロン台

  • ズボンプレッサー

  • スマートフォン充電器

  • アダプタープラグ

  • 変圧器

  • LANケーブル

  • HDMIケーブル

  • 延長ケーブル

  • 電気スタンド

  • Blu-rayデッキ

  • Appleミラーリングツール

  • 枕(そば殻・テンピュール)

  • 毛布

  • ナイトウェア(LLサイズ)

  • ベビーベッド

  • ベッドガード

  • キッズアメニティ

  • お子様用ガウン

  • アイスノン

  • 体温計

  • 爪切り

  • ソーイングセット

  • 体重計

  • 風呂椅子

  • 洗面器

  • 滑り止めマット

  • ハンディキャップ用腰掛椅子

  • 車椅子

  • スキンケアグッズ

  • シャワーキャップ

  • ヘアアイロン

  • パナソニック ナノケア ドライヤー

  • 栓抜き

  • ワインオープナー

  • ワイングラス

  • ワインクーラー

  • カトラリー類(箸・フォーク・ナイフ・スプーン)

※AppleミラーリングツールはLightningケーブルをご用意しております。
※ベビーベッドは有料(2,000円/1泊)でございます。

breakfast

朝食

 

食い倒れの街・大阪。
そんな大阪の食文化を、朝食でも存分にお楽しみいただけるメニューをご用意いたしました。